Richieste
Planimetria Storica
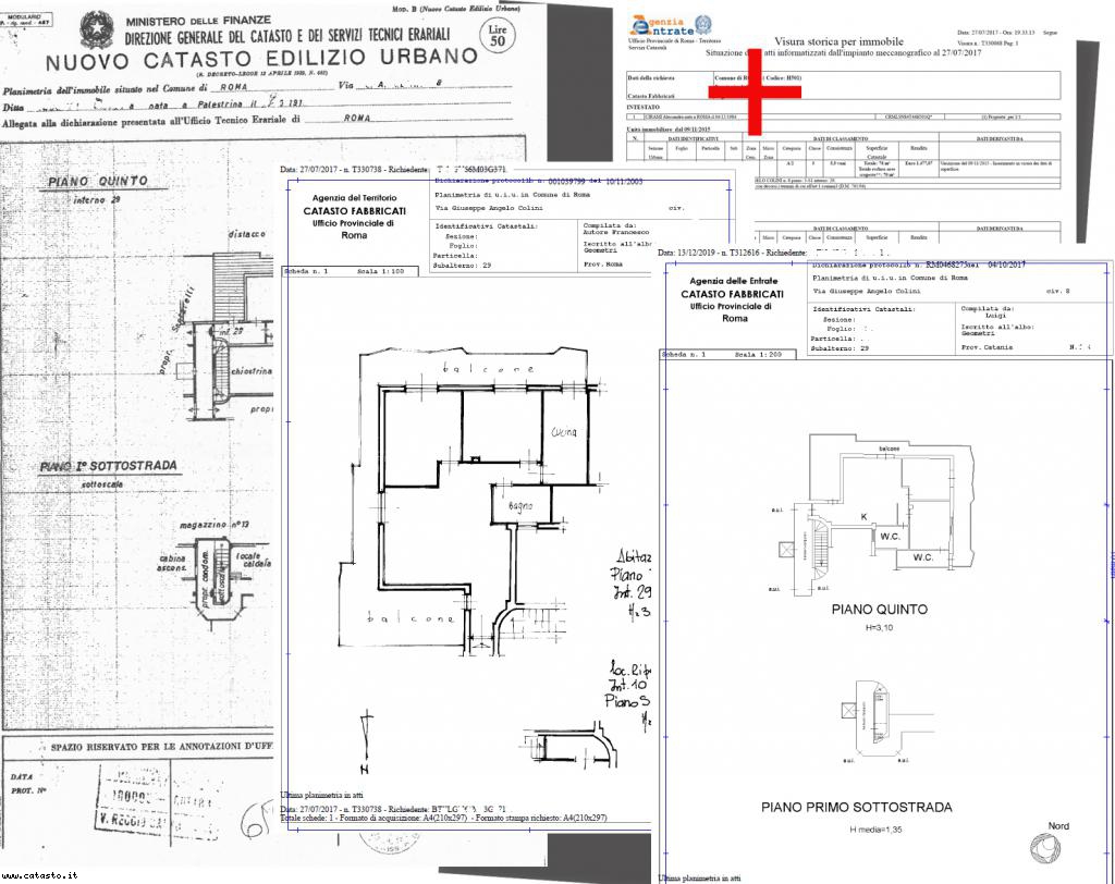
04-PnimetriaStorica
Ordine per ricevere online una Planimetria Catastale Storica
dell’appartamento, ufficio, bottega, box etc., reperibile sulla base
informatizzata del catasto, ovvero tutte le planimetrie antecedenti quella
attuale che si trovano informatizzate riguardante la stessa unità immobiliare,
più la visura storica compresa nel servizio.
Oltre a completare il presente ordine con il relativo pagamento, occorre
Compilare la delega:
(Scarica qui la delega) e spedire via e-mail a
info@catasto.it oppure
via fax 095-850651 con copia di un documento di riconoscimento in corso di validità.
Si ricorda che la Planimetria Catastale
può essere richiesta solo da un intestatario, un avente diritto o suo delegato.
Ordine per ricevere online una Planimetria Catastale Storica
dell’appartamento, ufficio, bottega, box etc., reperibile sulla base
informatizzata del catasto, ovvero tutte le planimetrie antecedenti quella
attuale che si trovano informatizzate riguardante la stessa unità immobiliare,
più la visura storica compresa nel servizio.
Oltre a completare il presente ordine con il relativo pagamento, occorre
Compilare la delega:
(Scarica qui la delega) e spedire via e-mail a
info@catasto.it oppure
via fax 095-850651 con copia di un documento di riconoscimento in corso di validità.
Si ricorda che la Planimetria Catastale
può essere richiesta solo da un intestatario, un avente diritto o suo delegato.

